8630 Hydraulic Service Crane
8,600-lb Capacity with 30′ of Reach
Part of Stellar’s new 86 Series, the 8630 Telescopic Crane features an innovative design and quality construction for the ultimate in productivity. The unique boom design reduces weight while maintaining strength, the compact boom tip provides easier reach into small spaces, and the CDTpro™ Control System with Range Finder™ technology delivers superior control and communications.
10+ available in Inventory
PrintAdditional Information
- Planetary Winch. Featuring a hydraulic or mechanical brake system, it lifts the maximum crane load and offers the smoothest and fastest speeds in the market today for maximum productivity.
- CDTpro Control System. The most advanced crane remote ever. Save time by knowing your crane can lift the load before you set up. The innovative, industry-only Range Finder™ technology provides real-time max lifting capacity from any point around the crane.
- Flip Sheave with Bar-Style Anti-Two Block. Stellar’s patented flip sheave allows for a shorter horse head profile, allowing for boom placement in tight quarters, such as an equipment cab.
- Octagonal Boom. This next-generation telescopic service crane boom design optimizes all the features of a hexagonal boom while reducing weight.
- Superior Boom Articulation. Stellar Hydraulic Cranes make loading easier with industry-leading -10 degrees to +80 degrees articulation.
- Full Hydraulic Extension. No manual extension is required. You get full hydraulic reach of 30′.
- Crane Boost System: This industry-first, proprietary technology from Stellar allows operators who reach maximum capacity to productively operate through that situation by effectively increasing crane capacity to nearly 118% of its normal operating mode for a short period of time.
- Quick-Release Snatch Block Stow. Easily stow your snatch block on the underside of the boom after use. The unique design gently releases the snatch block for use when the boom is raised at close to 60 degrees to ensure a safe and orderly deployment.
- On-Demand Speed Control. This Stellar exclusive ramps engine rpm up only when the crane is being used, returning it to idle after five seconds to lower fuel consumption and reduce noise pollution in the work area.
- 400-Degree Rotation System. The cast iron base and internal mechanical stop provide the most durable rotation system found in the industry.
- Counterbalance Valves. Included on each cylinder to prevent unintended cylinder movement should a hose break.
- Greaseable Pivot Bushings. Each pivot pin location includes bushings and grease zerks to simplify maintenance and help ensure years of use.
- Certified. Meets ANSI B30.5 and OSHA 1910.180 specifications.
Specifications
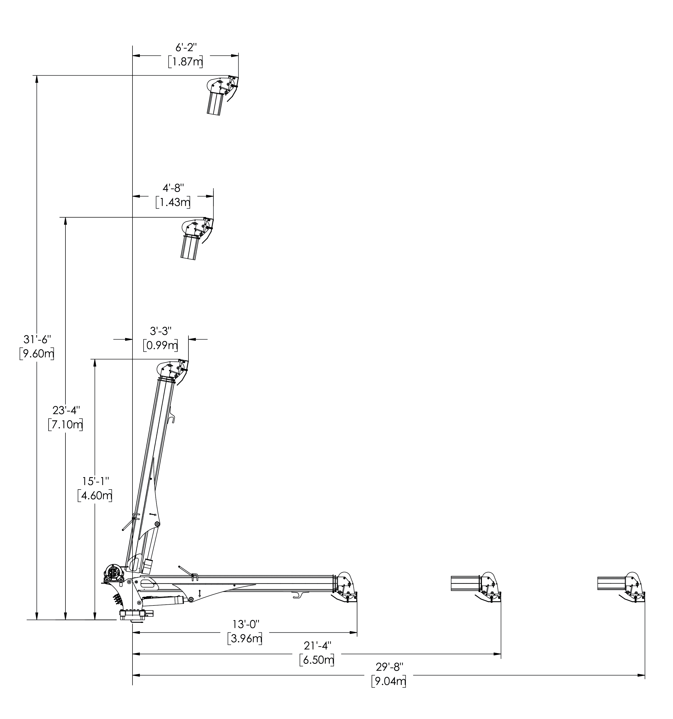
| Crane Rating*: | 53,100 ft-lb (7.3 tm) |
| Boom Length: | 13' (3.96 m) from CL of crane |
| Boom Extension: • 1st Stage: • 2nd Stage: |
Hydraulic 100" (254 cm) Hydraulic 100" (254 cm) |
| Maximum Horizontal Reach: | 29' 8" (9.04 m) from CL of crane |
| Maximum Vertical Lift: | 31' 6" (9.60 m) from crane base |
| Lifting Capacity**: | 8,600 lbs @ 6' 2" (3,900 kg @ 1.88 m) |
| 1,820 lbs @ 29' 2" (826 kg @ 8.89 m) | |
| Boom Elevation: | -10° to +80° |
| Stowed Height (crane only): | 38.6" (98 cm) |
| Mounting Space Required: | 20" x 21" (50.8 x 53.3 cm) |
| Approximate Crane Weight: | 1,735 lbs (787 kg) |
| Winch: • Rope Diameter: • Line pull speed: • Max. single part line: • Max. double part line: |
3/8" (0.95 cm) 6X31 IWRC-DGXIP X 120' (30.48 m) 60 ft/min (18.29 m/min) 4,300 lbs (1,950 kg) 8,600 lbs (3,900 kg) |
| Rotation: | 400° power (worm gear) |
| Power Supply Required: | PTO & Pump 8 gpm @ 3,000 psi (30.3 lpm @ 207 bar) |
| 8 gpm @ 3,000 psi (30.3 lpm @ 207 bar) | |
| Min. Rec. Chassis (GVWR): | 19,000 |
| *Crane rating in Boost Mode. Normal crane rating is 45,000 ft-lbs (6.2 TM). | |
| **Maximum capacities in Boost Mode. |
Resources
Videos
Optimize your Service vehicle
Because different people use service vehicles in different ways, Stellar makes it easy to outfit yours with a wide range of accessories.
Related Articles
Truckside Video Chat: How Company Wrench Attracts and Retains Technicians With Stellar Mechanic Trucks
Watch Bob Hosler from Company Wrench discuss Stellar TMAX Mechanic Truck benefits, including how Company Wrench uses them to recruit top technicians.
Videos: Stellar at CONEXPO and Work Truck Week
Get video recaps of both CONEXPO and Work Truck Week, plus get the inside scoop on products showcased at the events.
Stellar Highlights Industry-Leading Work Truck Solutions at NTEA’s Work Truck Week 2026
See the new 2026 TMAX Aluminum Mechanic Truck and EC3200 Electric Service Crane, plus the NXT24 Hooklift and Single-Axle Lube Truck at the show.
Ready to Get the Job Done?
Reach out to us today. With Stellar, you don’t just get tough, reliable products and equipment. You get real solutions to real problems — designed with you in mind.